• Vinohradská 112

    Vinohradská 112

  • Kancelář

    Kancelář

  • Pohled do mezibloku

    Pohled do mezibloku

  • Chodba

    Chodba

  • Pohled do ulice

    Pohled do ulice

  • Sociální zařízení

    Sociální zařízení

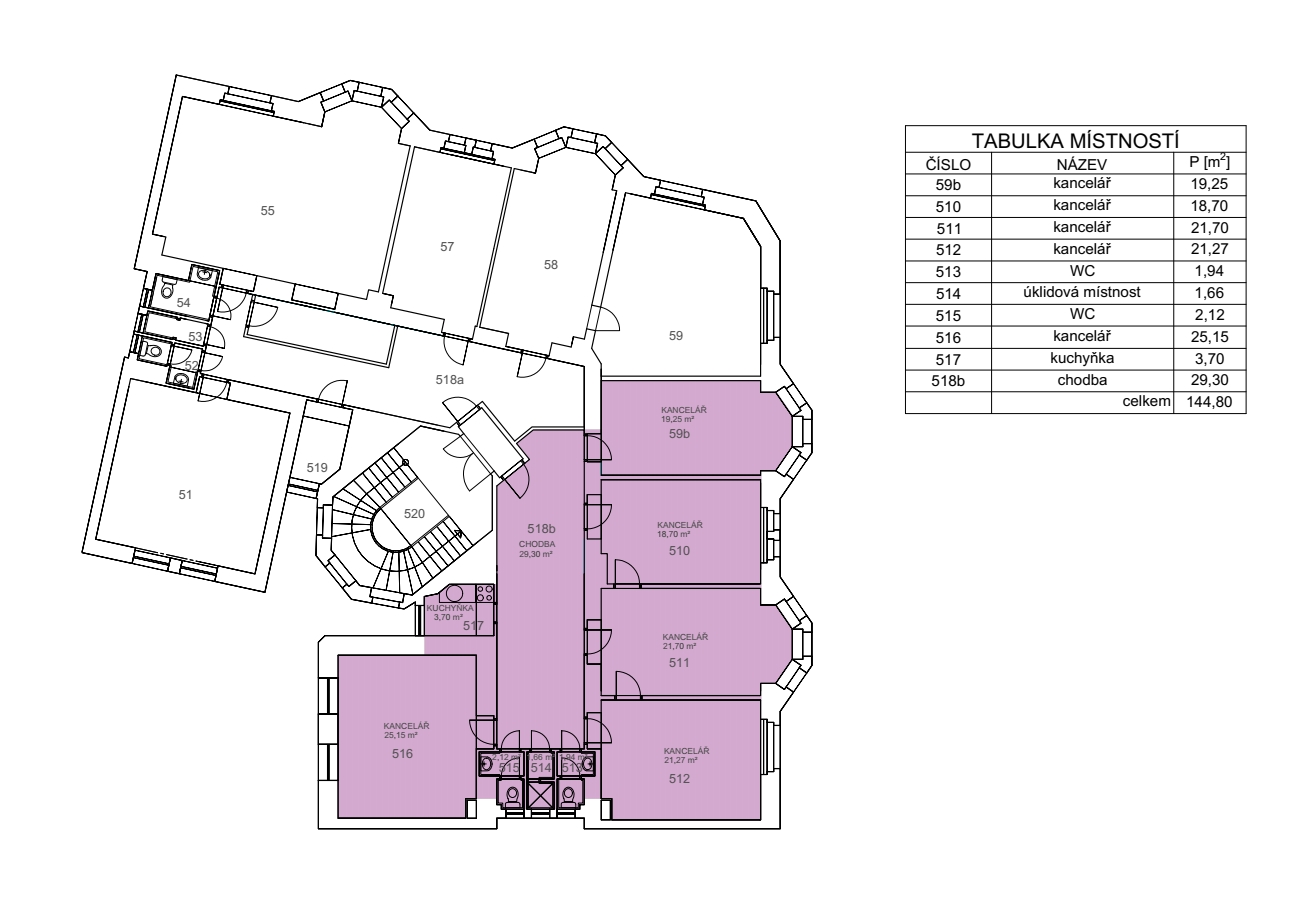
Aktuální nabídka

Nabízíme kancelářské prostory v 5. NP o celkové ploše 144,80 m2

Další informace

Fotogalerie

Budova zvenku, vstup do domu, schránky, kanceláře, sociálky, mapa

Budova zvenku

Schránky

Kanceláře

Sociálky